1. Ưu điểm cửa kính cường lực trượt treo:
- Nhằm khắc phục một số hạn chế về diện tích cửa mở quay cần có không gian mở tiết kiệm được không gian.
- Cửa đi trượt treo ray trên có thể loại bỏ hoàn toàn phần ray đỡ cố định bên dưới giúp cho việc đi lại được dề dàng.

Cửa kính cường lực mở trượt
2. Ứng dụng cửa kính cường lực trượt treo:
- Cửa trượt treo được sử dụng nhiều cho nơi phân chia không gian cửa thông phòng giữa phòng khách và phòng bếp, phòng ăn, phòng vệ sinh và phòng ngoài.
- Rất phù hợp với các vị trí như: cửa đi chính, cửa thông phòng, cửa phòng vệ sinh
- Nhằm khắc phục một số hạn chế về diện tích cửa mở quay cần có không gian mở tiết kiệm được không gian.
- Cửa đi trượt treo ray trên có thể loại bỏ hoàn toàn phần ray đỡ cố định bên dưới giúp cho việc đi lại được dề dàng.

Cửa kính cường lực mở trượt

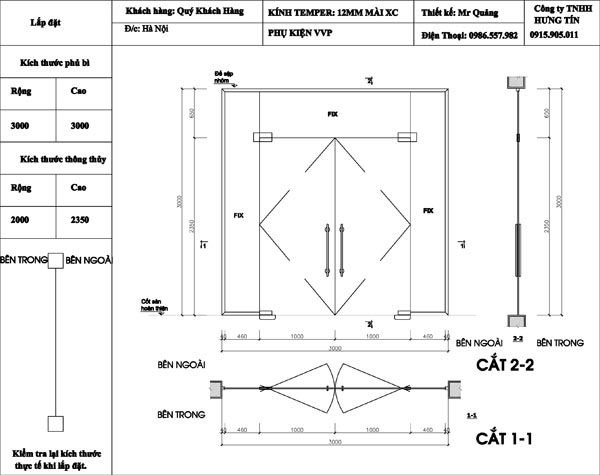
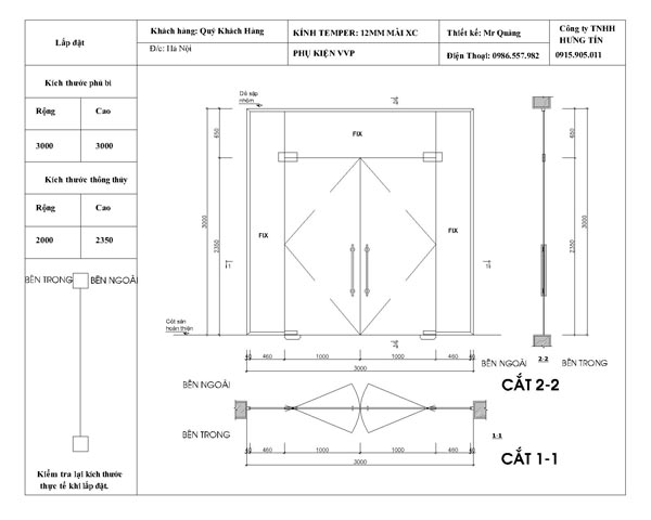
Bản vẽ

Bản vẽ kỹ thuật
- Cửa trượt treo được sử dụng nhiều cho nơi phân chia không gian cửa thông phòng giữa phòng khách và phòng bếp, phòng ăn, phòng vệ sinh và phòng ngoài.
- Rất phù hợp với các vị trí như: cửa đi chính, cửa thông phòng, cửa phòng vệ sinh
Cửa kính cường lực mở trượt treo
3. Cấu tạo cửa kính cường lực trượt treo:
- Kính temper: 10-12mm
- Ray treo: Ø25 x 1,2mm inox 304
- Tay treo trượt cửa kính: inox 304
- Giá đỡ ray treo trên kính: inox 304
- Đầu hãm cửa kính: inox 304
- Định vị dưới: inox 304

Cửa kính cường lực
4. Kích thước cửa kính cường lực trượt treo:
- Rộng cho phép: 500 - 1200mm
- Cao cho phép: 1900 - 2500mm
- Trọng lượng cánh tối đa cho phép: 120kg